площадью 2262,00 м2, по цене 200000000 по адресу Московская - 21/16

Цена 200 000 000 р.
Район Ленинский
Адрес Московская, 21/16
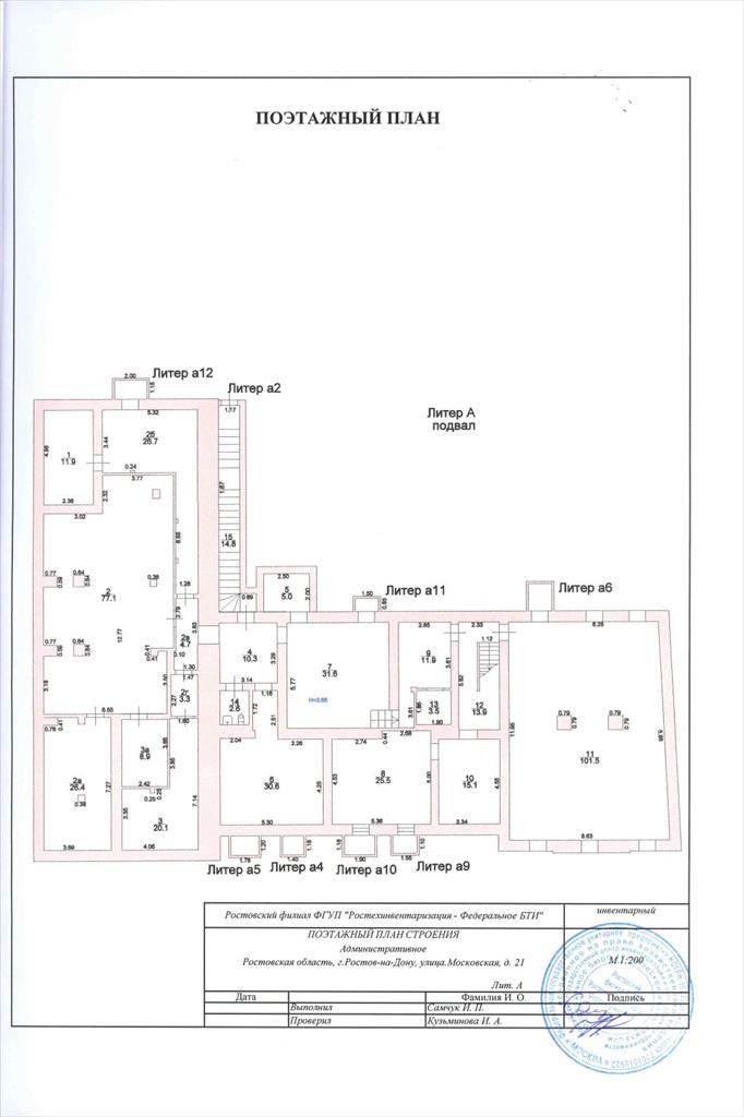
Площадь помещения 2262 м2
ПРОДАЖА ЗДАНИЯ 2262 М2 В ЦЕНТРЕ ГОРОДА | ул. Московская | Земельный участок 677 м2 в собственности Прямая продажа от собственника. Уникальное предложение на рынке коммерческой недвижимости — готовый к использованию офисный комплекс с земельным участком в самом центре города. Уникальная локация — главная преимущество: Центральная часть города, первая линия ул. Московской — максимальная проходимость и престиж. Высокая узнаваемость и транспортная доступность. Технические характеристики здания: Общая площадь: 2 262 м2 Площадь земельного участка: 677 м2 (оформлен в собственность — это значительная экономия для инвестора). Техническое оснащение: система видеонаблюдения, приточно-вытяжная вентиляция, центральное кондиционирование, современные инженерные системы. Электроснабжение: 250 кВт Текущее состояние и потенциал объекта: Текущее использование: офисный центр с готовой планировкой и всей необходимой инфраструктурой. Гибкость форматов: Идеально подходит для: Корпоративной штаб-квартиры крупной компании. Премиального офисного центра класса «B+» с посуточной арендой. Стрит-ритейла на первом этаже (под брендовый магазин, банк, аптеку). Социальной инфраструктуры (медцентр, лаборатория). Инвестиционный потенциал: Возможность повышения доходности за счет ребрендинга и перепланировки. Условия продажи: Цена: 200 млн рублей Правовой статус: Чистые документы, земля и здание в собственности. Для инвесторов и стратегических покупателей: Готовы предоставить полный пакет документов, финансовую модель, провести детальную экскурсию. Звоните все подробно обсудим.
Объявление № 23455451
Дата подачи:
21 октября 2025 г. 23:27
Дата обновления:
21 октября 2025 г. 0:00
Просмотров 13 Хотите продать быстрее?

Продавец
Алексей
Показать номер телефона
Пожаловаться
Комментарии:
Добавить